Palans à air lourds

https://pimdata-dev-cbd9b4bahucjbdcw.a02.azurefd.net/ber-pim/jobsite/files/TCR2000C/jei_Main_Image/2-ton.jpg

Palans à air lourds

Fabricant
Modèle #
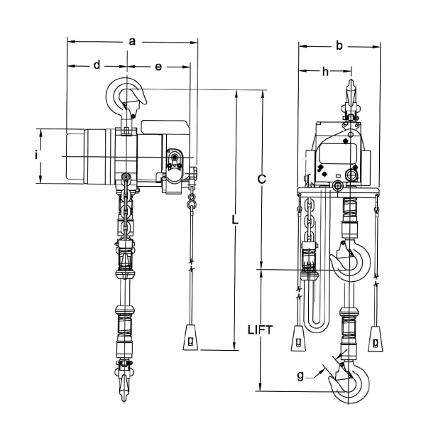
Le palan pneumatique Kito TCR est une solution de levage robuste et fiable, conçue pour des environnements industriels exigeants. Il offre un fonctionnement fluide avec une grande capacité de charge et un contrôle précis, idéal pour des tâches de levage lourdes. Construit pour durer, il assure des performances optimales dans des conditions difficiles, parfait pour une utilisation intérieure et extérieure.
Demander un devis
Caractéristiques
60 - 90 psi
21,8 po
10 pi
2 t
Poids
86 lb

 

 

 

 

Demander un devis

Loading...
Province
Jobsite Location